Waiting for your dream home - Tallai land.

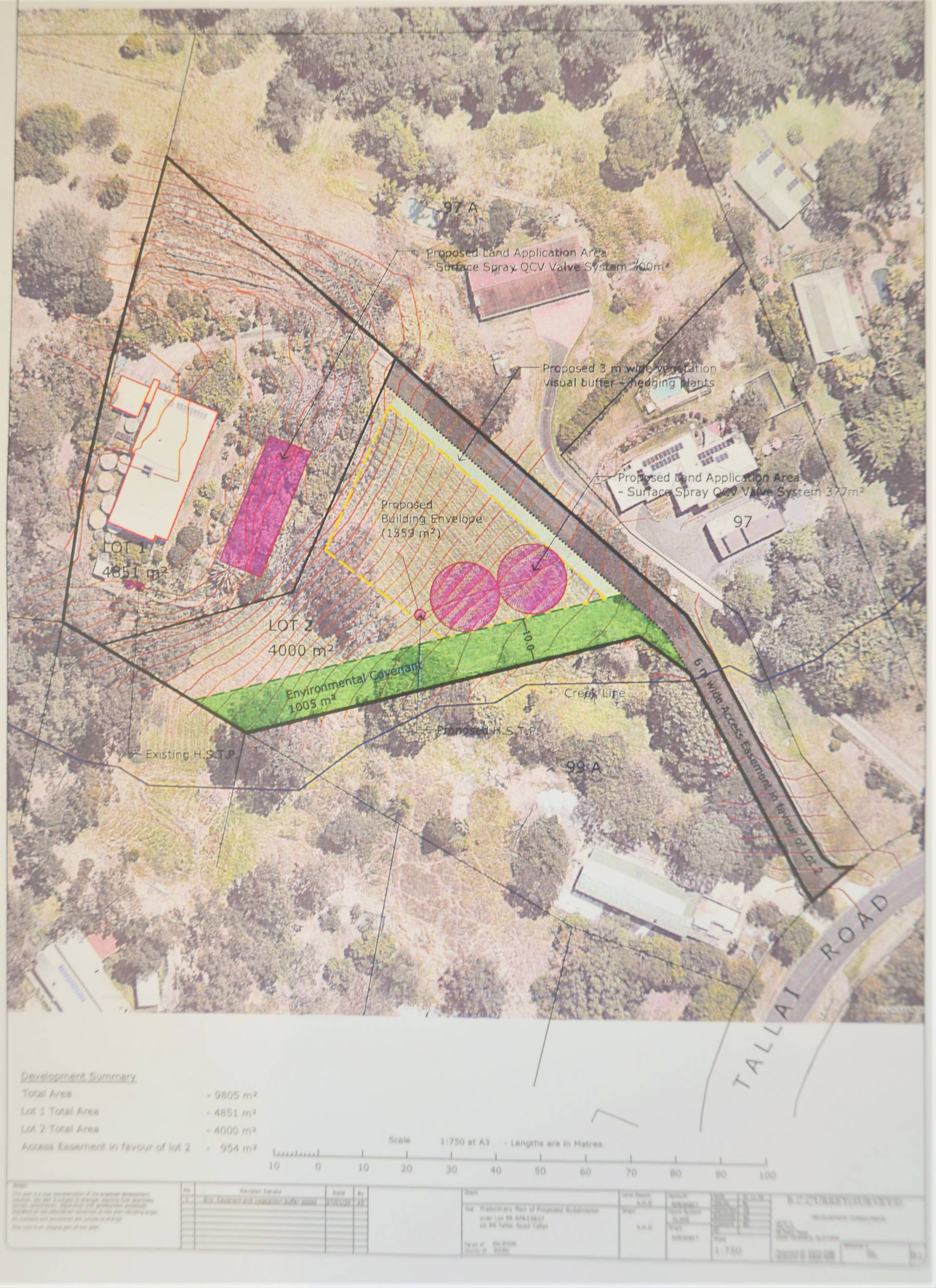
For sale.....and scarcer than hen's teeth, this gorgeous one acre block in Tallai Road. Access driveway already in place to this gentle sloping block where you won't need to clear trees to build your perfect home.

Close to Mudgeeraba shops, prestige schools and the Robina Town Centre amenities less than a 10 minute drive.

 

4 4,000 m2
Address 99 Tallai Rd, Tallai
Price SOLD
Property Type Residential
Property ID 1581
Category Vacant Land
Land Area 4,000 m2

Agent Details

Jaimie Juriansz photo

Jaimie Juriansz

0418 888 099
View Profile